Share
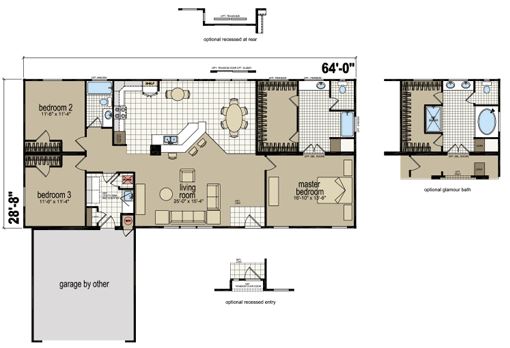
CREEKSIDE MANOR 5643M
3 Bedrooms, 2 Bathrooms, 1835 sq. ft.
Multi-Section
Series:
Creekside Manor
This
jQuery slider
was created with the free
EasyRotator
software from DWUser.com.
Need a powerful
Flash slideshow
creator with built-in iPhone/iPad/Android support? EasyRotator is supported by the
XML Flash Slideshow v4 Software
.
OK
Rotator powered by
EasyRotator
, a free and easy jQuery slider builder from DWUser.com. Please enable JavaScript to view.