Share
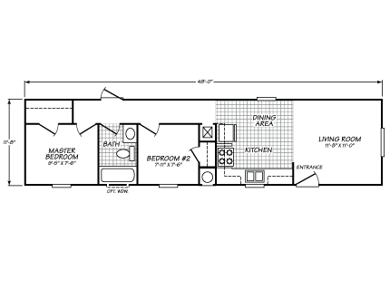
CROWNPOINTE XTREME 12482L
2 Bedrooms, 1 Bathroom, 559 sq. ft.
Building Method: Manufactured
Series:
Crownpointe Xtreme
Floor Plan
Exterior
Birch Decor
Frost Decor
Sunset Decor
Truffle Decor
This
jQuery slider
was created with the free
EasyRotator
software from DWUser.com.
Need a powerful
Flash slideshow
creator with built-in iPhone/iPad/Android support? EasyRotator is supported by the
XML Flash Slideshow v4 Software
.
OK
Rotator powered by
EasyRotator
, a free and easy jQuery slider builder from DWUser.com. Please enable JavaScript to view.